Дом по адресу Новосибирск, Ордынский район, за 3000000 р.

Адрес Новосибирск, Ордынский район, село Красный Яр, Щорса улица
Цена 3 000 000 р.
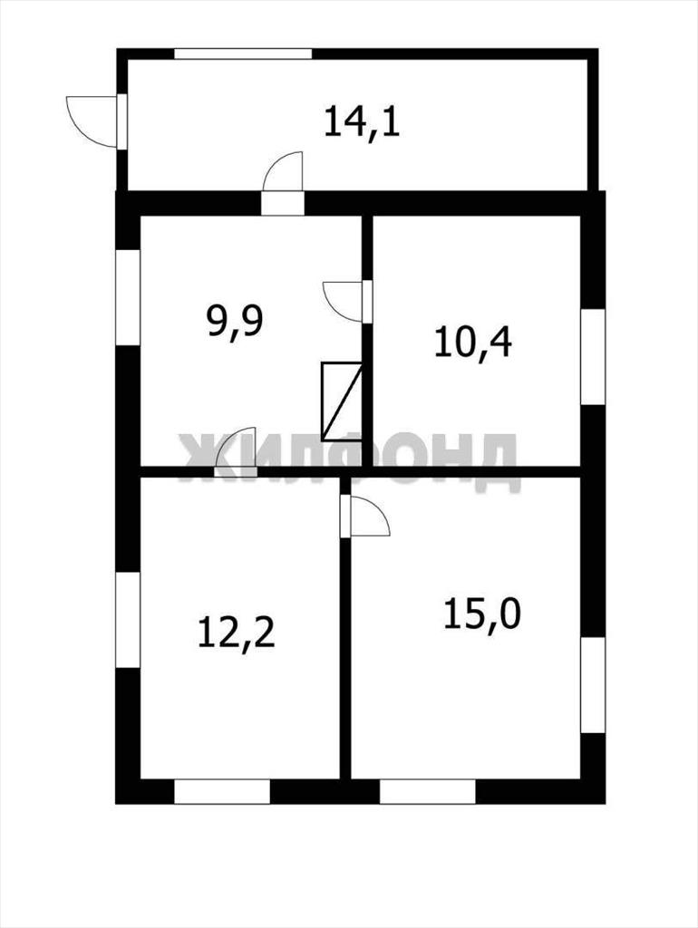
Площадь дома 47,5 м2, участка 28 м2
Дом по ул. Щорса. Общей площадью: 47.50 кв.м. Предлагаем в продажу замечательный дом! Улица широкая, асфальтированная. Дом круглогодичного проживания располагается на ровном участке , правильной формы 28 сот. В доме 3 комнаты по 15. , 10,4. , 12,2 кв. м. и кухня 9,9 кв. м Коммуникации: вода в доме, отопление печное, в доме сухо тепло и уютно, свет. Газ на границе земельного участка. Весь участок огорожен по периметру, на участке расположена баня, хоз. постройки. Огород ухожен! Земля разработана. огурцы, помидорчики картофель. Село находится в курортной зоне, Обское море в пешей доступности, благоустроенная прибрежная зона с беседками и местом для купания, бор с грибами и ягодами. Прекрасное место для отдыха и проживания. Инфраструктура развита супермаркеты, больница, детский сад, школа все в пешей доступности, парк красивый для отдыха, хоккейная коробка для катания на коньках) Успейте приобрести замечательный объект для дачи и насладиться уже сезоном 2025 г. или постоянного проживания. Показываем в удобное для Вас время! ! Помощь в получении ипотечного решения , использования материнского капитала на покупку данного объекта и всех полагающихся вам субсидий! Звоните! ! Возможен обмен на вашу недвижимость. Возможна продажа в рассрочку. При звонке, пожалуйста, сообщите номер варианта - JV008054196328
Объявление № 23293256
Дата подачи:
6 октября 2025 г. 0:21
Дата обновления:
6 октября 2025 г. 0:21
Просмотров 13 Хотите продать быстрее?

Продавец
Екатерина Викторовна
Показать номер телефона
Пожаловаться
Комментарии:
Добавить